燃烧器煤粉喷管
燃烧器一次风喷嘴
燃烧器二次风喷嘴
煤粉交换器(换向器)
预热器扇形板
上中心密封改进
制粉系统三向转换器
所有产品列表
无锡市滨湖区绣溪路58号21-610
总经理:董文洁
电 话:0510-85184396
手 机:013606186009
传 真:0510-85187953
当前位置>>
产品展示
>>
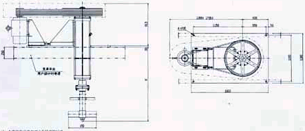
kJZ型前池搅拌器
kJZ型前池搅拌器主要用于燃煤电站灰渣处理系统,安装于灰渣浆前池加以搅拌防止灰渣凝固沉淀。其工作原理是由电机驱动皮轮经减速后带动搅拌轴工作,实现搅拌功能。
型号项目
灰渣粒径mm
叶轮直径
ФDmm
主轴转速r/mim
电机功率Kw
kJZ-600
<50
Ф600
280
11
kJZ-800
Ф800
190
15
版权所有 无锡市科力电力设备有限公司 专业
电力设备
制造商