 |
|
|
|
|
|
|
 |
| |
| |
无锡市滨湖区绣溪路58号21-610
|
|
| 总经理:董文洁 |
| 电 话:0510-85184396 |
| 手 机:013606186009
|
| 传 真:0510-85187953 |
| |
| |
|
|
|
 |
| |
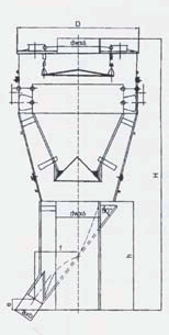
KCB-I系列轴向型粗粉分离器 |
| 二.设备性能:采用轴向布置分离叶片,加大圆筒空间,与过去径向型相比,分离效果好,改善煤粉均
匀程度,减少回粉循环倍率,可以相应提高磨煤机出力,降低分离器阻力和粉制单耗。 |
| 三.结构特点: |
| 1、增大分离器容积,降低容积强度; |
| 2、轴向式折向门,最佳开角40°-50°; |
| 3、进出管流速取5-18m/s,以降低阻力; |
| 4、内锥体上加一可上下移动的锥型帽,可以粗调煤粉细度; |
| 5、内锥回粉装置采用离片式结构,避免缝隙堵塞; |
| 6、折向门和锥帽调整杆单独调整。 |
| 四.适用条件: |
| 1设计按中等烟煤为系列设计煤种依据,推荐可适用于各种煤种(其R=6~28%范围内); |
| 2阻力系数§=5~7;3有防爆型和非防爆型两类供选用;4煤粉细度调节系数>5。 |
| 五.规格选择: |
| 先根据煤质,按制粉质统计算标准选定煤粉细度,再按公式(1)计算采用的容积强度Qtf/v。 |
| |
规格尺寸 |
1 |
2 |
3 |
4 |
5 |
6 |
7 |
8 |
9 |
10 |
11 |
Φ2200 |
Φ2500 |
Φ2800 |
Φ3100 |
Φ3400 |
Φ3700 |
Φ4000 |
Φ4300 |
Φ4700 |
Φ5100 |
Φ5500 |
D |
2200 |
2500 |
2800 |
3100 |
3400 |
3700 |
4000 |
4300 |
4700 |
5100 |
5500 |
dw |
530 |
630 |
750 |
820 |
1020 |
1120 |
1320 |
1420 |
1620 |
1720 |
2020 |
a |
177 |
201 |
226 |
250 |
274 |
298 |
322 |
346 |
379 |
411 |
443 |
b |
378 |
429 |
481 |
532 |
584 |
636 |
686 |
738 |
807 |
876 |
945 |
H |
5000 |
5600 |
6300 |
7000 |
7700 |
8400 |
9100 |
9800 |
10700 |
11600 |
12500 |
h |
1748 |
1985 |
2219 |
2456 |
2696 |
2930 |
3167 |
3404 |
3723 |
4053 |
4350 |
e |
130 |
160 |
188 |
212 |
252 |
284 |
309 |
339 |
384 |
420 |
447 |
f |
752 |
855 |
957 |
1060 |
1162 |
1256 |
1368 |
1470 |
1607 |
1744 |
1880 |
拆向门数量 |
30 |
30 |
30 |
30 |
30 |
030 |
30 |
30 |
36 |
36 |
36 |
防爆门数量 |
4 |
4 |
4 |
4 |
6 |
6 |
6 |
6 |
8 |
8 |
8 |
防爆门直径 |
330 |
400 |
470 |
540 |
520 |
580 |
650 |
730 |
730 |
810 |
910 |
分离器重量 |
5037 |
5623 |
6859 |
7506 |
9132 |
10282 |
11973 |
13413 |
16313 |
18311 |
20180 |
|
|
|
| |
| |
| |
| |
| |
| |
|
|