 |
|
|
|
|
|
|
 |
| |
| |
无锡市滨湖区绣溪路58号21-610
|
|
| 总经理:董文洁 |
| 电 话:0510-85184396 |
| 手 机:013606186009
|
| 传 真:0510-85187953 |
| |
| |
|
|
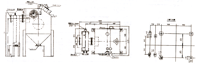
KPY型石子煤收集器 |
| 本产品是火力发电厂上煤系统中速磨煤机的配套设备,通称为石子煤斗,安装于磨煤机弃料口下侧
接受它吐出的废料石子煤(即黄铁矿)。该收集器的水封料斗呈方型锥体,石子煤留在锥体底部逐渐冷却,等待清洗排放。石子煤斗的容量选择由与锅炉配用的中速磨煤机及废弃石子煤排出量决定,这里介绍的是0.8m石子煤收集器,如需其它参数和容量,请向我公司提出,便于配合你设计和生产。 |
|
规 格 |
0.8m3 |
1.0m3 |
1.2m3 |
K |
1930 |
2130 |
2330 |
K |
1750 |
1905 |
2105 |
|
|
| |
|
|